Ga direct naar de hoofdinhoud
PC de Craeye
PC de Craeye
Home
Reserveren
Reservaties
Informatie
Dranken
Grondplan
Overeenkomst
Contact
Foto's
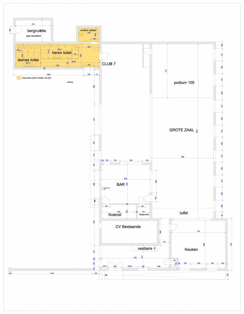
Grondplan
Welk deel van de zaal wenst u te huren? Volledige zaal, keuken, bar ...
Download het grondplan in pdf formaat